2018 Bond Proposals
THANK YOU!
The Grand Ledge Board of Education unanimously approved placing two bond proposals on the November 6, 2018 ballot, and YOU -- THE GRAND LEDGE COMMUNITY -- VOTED TO APPROVE BOTH BONDS!
This page will continue to be updated with more information.
However, please be advised that all meetings of the Grand Ledge Public Schools Board of Education are recorded and can be viewed in their entirety on the Board of Education Meeting Schedule page. These recordings may include discussions, decisions and approvals related to project bid awards and project invoice payments.
Looking for Current Requests for Bids or Proposals for Bond Projects? Please visit this page for current requests for bids or proposals for bond projects.
UPDATED BOND PRIORITIES as presented to the BOE, October 13, 2025

The "Facility Upgrade Priority Update - 8/25/25" was shared as part of Superintendent Barnes' "Assessing GLPS Facilities" presentation at the Board of Education meeting on October 13, 2025. To see the presentation, please expand the October 13, 2025 blue box below.

05-05-2026 Morris Property Photo Update
04-29-2026 Morris Property Progress Photos
04-29-2026 Wacousta Additional Classrooms Progress Photos
04-17-2026 Morris Property Progress Photos
04-15-2026 Wacousta Additional Classrooms Progress Photos
-
Click to see a larger version
Skip to end of gallery
Skip to start of gallery
-
Click to see a larger version
Skip to end of gallery
Skip to start of gallery
-
Click to see a larger version
Skip to end of gallery
Skip to start of gallery
-
Click to see a larger version
Skip to end of gallery
Skip to start of gallery
04-13-2026 Morris Property Progress Photos
04-13-2026 Wacousta Additional Classrooms Photo Update
-
Click to see a larger version
Skip to end of gallery
Skip to start of gallery
-
Click to see a larger version
Skip to end of gallery
Skip to start of gallery
-
Click to see a larger version
Skip to end of gallery
Skip to start of gallery
-
Click to see a larger version
Skip to end of gallery
Skip to start of gallery
-
Click to see a larger version
Skip to end of gallery
Skip to start of gallery
03-24-2026 Wacousta Additional Classroom Progress Photos
-
Click to see a larger version
Skip to end of gallery
Skip to start of gallery
-
Click to see a larger version
Skip to end of gallery
Skip to start of gallery
-
Click to see a larger version
Skip to end of gallery
Skip to start of gallery
-
Click to see a larger version
Skip to end of gallery
Skip to start of gallery
-
Click to see a larger version
Skip to end of gallery
Skip to start of gallery
-
Click to see a larger version
Skip to end of gallery
Skip to start of gallery
-
Click to see a larger version
Skip to end of gallery
Skip to start of gallery
Concrete flooring is being pours in the additional classrooms at Wacousta! (03-18-2026)
The sign is up for the Dave & Betty Morris School for Agricultural and Natural Sciences!

03-03-2026 Wacousta Additional Classroom Construction
-
Click to see a larger version
Skip to end of gallery
Skip to start of gallery
-
Click to see a larger version
Skip to end of gallery
Skip to start of gallery
-
Click to see a larger version
Skip to end of gallery
Skip to start of gallery
-
Click to see a larger version
Skip to end of gallery
Skip to start of gallery
-
Click to see a larger version
Skip to end of gallery
Skip to start of gallery
-
Click to see a larger version
Skip to end of gallery
Skip to start of gallery
Work begins for the new K-12 Agricultural and Natural Science Building at the Morris Property on Grand River! - Feb. 2026

Walls are going up for the new classrooms at Wacousta Elementary School! - Feb. 2026


April 27, 2026 Bond Update at School Board Meeting
March 23, 2026 Bond Update at School Board Meeting
February 23, 2026 Bond Update at School Board Meeting
January 26, 2026 Bond Update at School Board Meeting
January 26, 2026 Morris Property Update at School Board Meeting
You can view the slides in Dr. Barnes presentation here.
December 8, 2025 Bond Update at School Board Meeting
November 10, 2025 Bond Update at School Board Meeting
October 27, 2025 Bond Update at School Board Meeting
October 13, 2025 Bond Priorities at School Board Meeting
September 22, 2025 Bond Update at School Board Meetings
August 25, 2025 Bond Update at School Board Meeting
July 14, 2025 Bond Update at School Board Meeting
June 23, 2025 Bond Update at School Board Meeting
May 12, 2025 Bond Update at School Board Meeting
April 28, 2025 Bond Update at School Board Meeting
March 10, 2025 Bond Update at School Board Meeting
February 24, 2025 Bond Update at School Board Meeting
January 27, 2025 Bond Update at School Board Meeting
December 9, 2024 Bond Update at School Board Meeting
November 18, 2024 Bond Update at School Board Meeting
October 28, 2024 Bond Update at School Board Meeting
September 23, 2024 Bond Update at School Board Meeting
August 26, 2024 Bond Update at School Board Meeting
July 8, 2024 Bond Update at School Board Meeting
June 24, 2024 Bond Update at School Board Meeting
May 13, 2024 Bond Update at School Board Meeting
April 22, 2024 Bond Update at School Board Meeting
March 11, 2024 Bond Update at School Board Meeting
February 12, 2024 Bond Update at School Board Meeting
January 22, 2024 Bond Update at School Board Meeting
Fall/Winter 2023 Bond Updates
Earlier Bond Updates
December 11, 2023 Bond Update at School Board Meeting
November 27, 2023 Bond Update at School Board Meeting
October 23, 2023 Bond Update at School Board Meeting
September 25, 2023 Bond Update at School Board Meeting
August 28, 2023 Bond Update at School Board Meeting
July 2023 - Video of Site Work at Wacousta
Site Work at Wacousta – July 2023
July 2023 - The New Wacousta Elementary School, 6-page Bond Update
The New Wacousta Elementary School
View the 6-page Bond Update - July 2023 pdf (7.3MB).
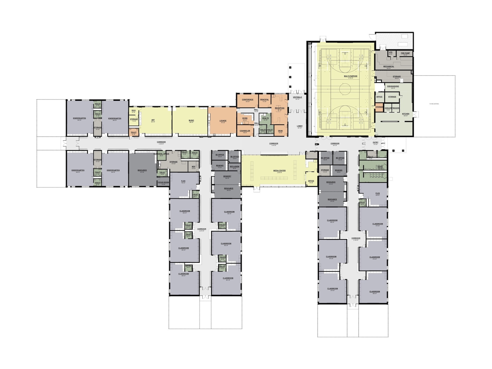
Future Wacousta Campus
To look closer, click the image below to open a bigger image.
Floor Plan for the New Wacousta
To look closer, click the image below to open a pdf file
July 10, 2023 - Bond Update at School Board Meeting
Bond Update at July 10, 2023 School Board Meeting
June 26, 2023 - Bond Update at School Board Meeting
Bond Update at June 26, 2023 School Board Meeting
June 19, 2023 - New Facilities & AD Win GLPS Hosting Opportunities for MHSAA & CAAC Events
New Facilities & AD Win GLPS Hosting Opportunities for MHSAA & CAAC Events
June 19, 2023
The improvements made at GLPS because of the bond projects have given the Athletic Department the opportunity to host numerous MHSSA events and CAAC events. This is great exposure for not only our school district but our entire community. The track and swim events were never even a possibility before the new facilities were built.
Just this year, GLPS hosted the following tournament events:
- Track and Field Regional (MHSAA)
- CAAC Track and Field League Meet
- Girls' Soccer Semifinal (MHSAA)
- Girls' Soccer Districts (MHSAA)
- CAAC Girls' Swim League Meet
- Boys' Lacrosse Quarterfinal (MHSAA)
- Gymnastics Regional (MHSAA)
- CAAC Boys' Swim League Meet
- Softball Districts (MHSAA)
- Volleyball Districts (MHSAA)
- Boys Soccer Semifinal (MHSAA)
- Girls' Golf Regional (MHSAA)
Also, with the renovation to the South end of the high school, GLPS has been awarded the MHSAA boys' basketball district tournament for the upcoming school year as well!
The outstanding coaches, game management staff, and loyal volunteers made all this possible as well. The Athletic Department could not have hosted these events without the hard work and dedication of many individuals.
Thank you so much for all your support!
May 22, 2023 - Bond Update at School Board Meeting
Bond Update at May 22, 2023 School Board Meeting
May 19, 2023 - Superintendent's Email Message
May 19, 2023 - Superintendent's Email Message

GLPS Families,
As we approach the end of May, and move closer to the end of the school year, we begin to think about summer break and preparing for fall. Part of that preparation is bringing new spaces online through our bond projects, and preparing for additional projects that will carry us through next year. At last night’s Parent School Improvement Team (PSIT) meeting, I received some feedback about doing a better job of sharing some of those updates, so I wanted to make sure to take some time today to do just that; share our progress.
-
We have been given occupancy on the high school fine arts and athletics facility. Some of the areas, including locker rooms, are still closed as we finalize the project, but our band students finally got to move into their new room! Here is what it looks like:



-
Delta Center is moving along as well, and all spaces will be ready for fall. The new secure entrance and office is taking shape, and the new classrooms for art and music, located along a corridor that will improve student flow in the building, are nearly complete as well. When it is done, the DC entry will mirror Holbrook’s and Beagle’s with a locked vestibule that requires guests to be buzzed into the office or the school. There is progress on the new road out to Michigan avenue, too. When the opens, it will significantly improve the drop off and pick up issues created by the current configuration. Here are pictures of the road, the new entrance, and the new hallway/classroom addition:


-
The next project that is actively in the design phase, includes roof replacements at the high school and Neff, along with a new heating and cooling system and secure entry at the high school. As our high school students and staff are well aware, the temperatures in the high school classrooms are unpredictable at best and uncomfortable at worst, and the system needs to be replaced. We also know that in this day and age, the more secure our entities can be, the better, and the high school’s will be designed to mirror Beagle’s and Holbrook’s, just like we are doing with Delta Center’s.
-
The Wacousta project is currently out for bid. At this time, we are still on track to begin the project over the summer. The design of the new building received extensive input from Wacousta and district staff, and was thoughtfully put together to include the “Open for All” feeling through open lobbies and large windows that makes Wacousta special, while creating walled classrooms that are more conducive to a safe learning environment that we need in a 21st century school. It will also have the same secure entries as the other buildings mentioned. And, of course, the Dream Depot is integral to the layout of the site!
-
We are putting the finishing touches on the pool repairs that I mentioned in earlier communications. While it is not ready yet, we are excited about putting the competition pool back into use, and appreciative that we were able to make the repairs at no cost to the district.
Those are all of the current projects underway. In the future, we will be making upgrades at Hayes and Willow Ridge and developing an agriscience building in the district. All bond projects, including the ones that have been completed and the ones I referenced here, can be found on our bond page (a special shout out goes to our Communications Director, John Ellsworth, for his work on the page and our website in general; last Friday was School Communicators Day, and John does an outstanding job managing our district communications).
We greatly appreciate the support of the community on these projects. They are truly transforming our district! Thank you to the GLPS team for all of their work in managing these projects, to Clark Construction for overseeing construction, to GMB for their design work, and to all the subcontractors who have made these improvements possible.
Have a wonderful weekend; as always, I am #proudtobeacomet!

Dr. Bill Barnes
Superintendent of Schools
April 24, 2023 - Bond Update at School Board Meeting
Bond Update at April 24 2023 School Board Meeting
Bond Project Highlighted on Local TV News
Bond Project Highlighted on Local TV News
A couple of bond projects were highlighted on the local news recently. Right before spring break, FOX47NEWS did a story about how student-athletes are using the new track this season. During spring break, WILX News10 did a story about our bond projects, specifically our Fine Arts & Athletics addition at the high school. It showed off some of the new spaces and even highlighted some of the "hidden" improvements (pump, filtration) at the community pool at the high school. Both of these stories serve as a good reminder that the bonds are improving things for our students, staff, and community.
March 13, 2023 - Bond Update at School Board Meeting
Bond Update at March 13, 2023 School Board Meeting
February 27, 2023 - Bond Update at School Board Meeting
Bond Update at February 27, 2023 School Board Meeting
January 23, 2023 - Bond Update at School Board Meeting
Bond Update at January 23, 2023 School Board Meeting
December 12, 2022 - Bond Update at School Board Meeting
Bond Update at December 12, 2022 School Board Meeting
November 14, 2022 - Bond Update at School Board Meeting
Bond Update at November 14, 2022 School Board Meeting
BOND PRIORITIES APPROVED by BOE
The "Prioritized List and Budget Impact" information is from the Board of Education meeting on November 14, 2022. The priorities were approved unanimously at that meeting. You can see the entire board presentation here.
October 24, 2022 - Bond Update at School Board Meeting
Bond Update at October 24, 2022 School Board Meeting
September 26, 2022 - Bond Update at School Board Meeting
Bond Update at September 26, 2022 School Board Meeting
August 22, 2022 - Bond Update at School Board Meeting
Bond Update at August 22, 2022 School Board Meeting
July 11, 2022 - Bond Update at School Board Meeting
Bond Update at July 11, 2022 School Board Meeting
June 27, 2022 - Bond Update at School Board Meeting
Bond Update at June 27, 2022 School Board Meeting
The Three Phases of the Bond Projects - May 23, 2022
The Three Phases of the Bond Projects
The following information is from a presentation shared with the Board of Education on May 23, 2022. Download a pdf file of the full presentation shown at the Board meeting.
Phase 1 - COMPLETED!
Holbrook, Beagle, Competition Pool, and Track & Facility
Phase I portion of the presentation (pdf)
Phase 2 - STARTED!
Fine Arts & Athletics Addition to GLHS, Delta Center, and Wacousta
Phase II portion of the presentation (pdf)
Phase 3 - Still to Come...
Construction Woes as well as GLHS, Hayes, Willow Ridge, Neff, and Morris
Construction Woes & Phase III portion of the presentation (pdf)
May 23, 2022 - Bond Update at School Board Meeting
Bond Update at May 23, 2022 School Board Meeting
Presentation shown at Board meeting

Download a pdf file of the full presentation shown at the Board meeting.
Phase I portion of the presentation - Holbrook, Beagle, Competition Pool, and Track & Facility
Phase II portion of the presentation - Fine Arts & Athletics Addition to GLHS, Delta Center, and Wacousta
Construction Woes & Phase III portion of the presentation - GLHS, Hayes, Willow Ridge, Neff, and Morris
Video of Bond Update at May 23, 2022 School Board Meeting
April 25, 2022 - Bond Update at School Board Meeting
Bond Update at April 25, 2022 School Board Meeting
March 14, 2022 - Bond Update at School Board Meeting
Bond Update at March 14, 2022 School Board Meeting
February 28, 2022 - Bond Update at School Board Meeting
Bond Update at February 28, 2022 School Board Meeting
January 24, 2022 - Bond Update at School Board Meeting
Bond Update at January 24, 2022 School Board Meeting
November 8, 2021 - Bond Update at School Board Meeting
Bond Update at November 8, 2021 School Board Meeting
October 25, 2021 - Bond Update at School Board Meeting
Bond Update at October 25, 2021 School Board Meeting
September 27, 2021 - Bond Update at School Board Meeting
Bond Update at September 27, 2021 School Board Meeting
August 23, 2021 - Bond Update at School Board Meeting
Bond Update at August 23, 2021 School Board Meeting
July 12, 2021 - Bond Update at School Board Meeting
Bond Update at July 12, 2021 School Board Meeting
May 10, 2021 - Bond Update at School Board Meeting
Bond Update at May 10, 2021 School Board Meeting
April 12, 2021 - Bond Update at School Board Meeting
Bond Update at April 12, 2021 School Board Meeting
March 22, 2021 - Bond Update at School Board Meeting
Bond Update at March 22, 2021 School Board Meeting
February 22, 2021 - GLPS Property Transferred to MDOT at School Board Meeting
February 22, 2021 - Bond Update at School Board Meeting
Bond Update at February 22, 2021 School Board Meeting
January 2021 - Pool & Music Construction at Beagle
Pool & Music Construction at Beagle - January 2021
January 11, 2021 - Bond Update at School Board Meeting
Bond Update at January 11, 2021 School Board Meeting
December 14, 2020 - Bond Update at School Board Meeting
Bond Update at December 14, 2020 School Board Meeting
November 16, 2020 - Bond Update at School Board Meeting
Bond Update at November 16, 2020 School Board Meeting
October 2020 - M-43 Connection Information
Second Meeting about M-43 Connection -- October 27, 2020
Presentation at the Meeting
Please note this pdf of the presentation has been updated to reflect the correction to the date of the traffic study.

Roundabout Video Mentioned at the Meeting
>
Video Recording of the Meeting
Second Meeting about M-43 Connection -- 6:00 p.m., Tuesday, October 27, 2020 
Three years ago in November 2017, Grand Ledge Public Schools began trying to get access to the “22 acres” from M-43. Since then, Grand Ledge Public Schools has worked with many government agencies to determine what access will be safe and allowed. Grand Ledge Public Schools is holding a second virtual meeting at 6:00 p.m. on Tuesday, October 27 to share information and get feedback about the M-43 connection. Visit GLcomets.net/Bonds for more information and instructions to access the meeting.
Please click the link below at the time of the meeting to join the Zoom webinar / virtual meeting:
https://us02web.zoom.us/j/89127190118?pwd=UndPTjk2SGRkV2xUL2tQa0ZXeE8xUT09
Passcode: 632979
Or Telephone: +1 312 626 6799 or +1 929 436 2866 or +1 301 715 8592 or +1 346 248 7799 or +1 669 900 6833 or +1 253 215 8782
Webinar ID: 891 2719 0118
Meeting about M-43 Connection -- October 19, 2020
Presentation at the Meeting
Please note this pdf of the presentation has been updated to reflect the correction to the date of the traffic study.

Roundabout Video Shown at the Meeting
>
Video Recording of the Meeting
Meetings about M-43 Connection and GLPS Bond Work
6:00 p.m., Monday, October 19 -AND- 6:00 p.m., Tuesday, October 27
Three years ago in November 2017, Grand Ledge Public Schools began trying to get access to the “22 acres” from M-43. Since then, Grand Ledge Public Schools has worked with many government agencies to determine what access will be safe and allowed. Grand Ledge Public Schools is holding two virtual meetings – Monday, October 19 & Tuesday, October 27, both staring at 6:00 p.m. – to share information and get feedback about the M-43 connection. Visit GLcomets.net/Bonds for more information and instructions to access the meeting.
Please click the link below at the time of the meeting to join the Zoom webinar / virtual meeting:
https://us02web.zoom.us/j/89127190118?pwd=UndPTjk2SGRkV2xUL2tQa0ZXeE8xUT09
Passcode: 632979
Or Telephone: +1 312 626 6799 or +1 929 436 2866 or +1 301 715 8592 or +1 346 248 7799 or +1 669 900 6833 or +1 253 215 8782
Webinar ID: 891 2719 0118
October 26, 2020 - Bond Update at School Board Meeting
Bond Update at October 26, 2020 School Board Meeting
October 2020 - Bond Update (10-page pdf)
Sep. & Oct., 2020 - GMB Updates for School Board
GMB Updates for School Board
Information provided by GMB to School Board about Holbrook (1.5MB pdf), October 6, 2020
Information provided by GMB to School Board about Beagle (3.1MB pdf), September 30, 2020
September 28, 2020 - Bond Update at School Board Meeting
Bond Update at September 28, 2020 School Board Meeting
August 24, 2020 - Bond Update at School Board Meeting
Bond Update at August 24, 2020 School Board Meeting
July 20, 2020 - Bond Update at School Board Meeting
Bond Update at July 20, 2020 School Board Meeting
June 2020 - Bond Update (10-page pdf)
June 22, 2020 - Bond Update at School Board Meeting
Bond Update at June 22, 2020 School Board Meeting
May 2020 - Bond Update (8-page pdf)
October 2019 - Community Bond Presentations
Community Bond Presentations
6:00 p.m., Thursday, October 10 -AND- 6:00 p.m., Wednesday, October 16
Sawdon Administration Building, 220 Lamson Street, Grand Ledge 48837
All are welcome to attend! Learn about the upcoming construction at Beagle and Holbrook as well as view visual architectural renderings for the first phase of the bond improvements. All are welcome to see the exciting plans for the future of Grand Ledge Public Schools.
August 11, 2019 - from the 2019 Fall INSIDER
April 7, 2019 - from the 2019 Spring INSIDER
Community Bond Presentations, January 2019
Community Bond Presentations
The Bond Proposals
Proposal One was developed to create SMARTER, STRONGER, SAFER Grand Ledge Public Schools. Proposal One would provide $118,640,000 for district-wide building and grounds improvements that would address identified and ongoing building issues and would support the district's grade restructuring initiative.

Proposal Two would provide $29,485,000 for athletic and fine arts building and grounds improvements designed for district and community use.
2018 - Informational Videos
Informational Videos
Overview of Both Bond Proposals - 3:58
District's Grade Restructuring Initiative - 1:30
SMARTER schools - 1:30
STRONGER schools - 1:08
SAFER schools - 0:58
Information for the 2018 Bond
Information for 2018 Bond
Confidential Tax Calculator. Use this link to calculate the specific costs of the bond proposal to you.
Board Resolution - Bond Proposals
Bond Information, 2-page flyer
Fall 2018 INSIDER with information about the bond proposals
Overview of Bond Proposals by Superintendent Dr. Brian Metcalf
Bond Boards Project Summary, the posters with conceptual graphics explaining the bond proposals
Breakdown of Bond Proposals, where the money is going for the bond proposals
Frequently Asked Questions (FAQ)
Paid for by Grand Ledge Public Schools, 220 Lamson Street, Grand Ledge, Michigan 48837














































